Local de obra nueva en esquina – Avenida Béjar 218

Local Comercial en venta en Terrassa, Barcelona (Nord Oest)

Terrassa (Nord Oest)

Ref. 1285 42 m2
venta: 70.000 

Oportunidad ideal para inversores o emprendedores que buscan un espacio de obra nueva en una de las avenidas con mayor dinamismo y crecimiento de Terrassa.


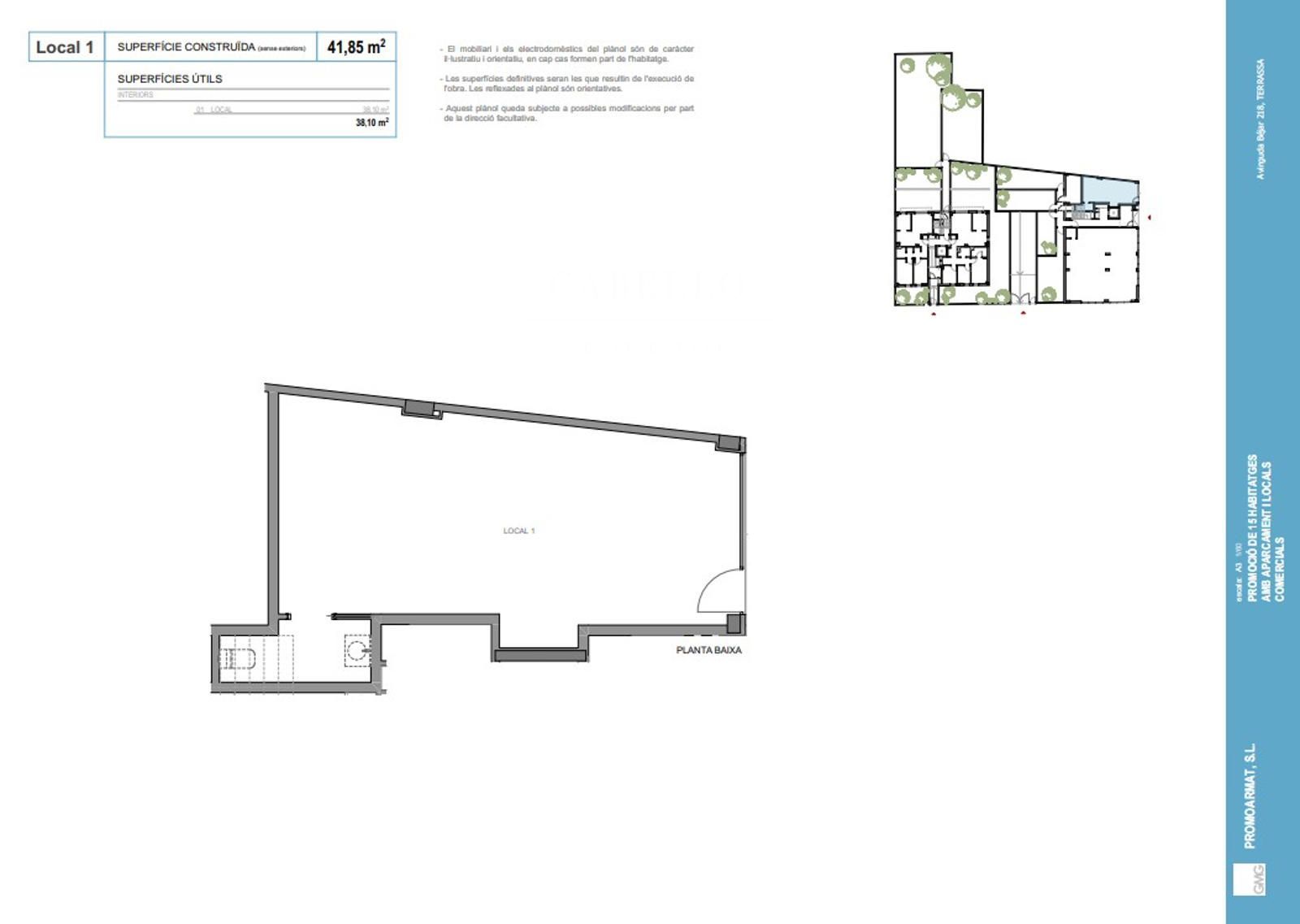
Este local, situado en la planta baja de un edificio de obra nueva (2025), cuenta con 42 m² construidos y 38 m² útiles, totalmente en esquina y con dos amplios escaparates que garantizan una excelente visibilidad comercial.


Su distribución diáfana permite adaptarlo fácilmente a distintos tipos de negocio: tienda de proximidad, despacho profesional, punto de servicios o showroom. Su tamaño compacto y rentable lo convierte en una inversión segura y fácil de gestionar, con un mantenimiento reducido y una alta demanda potencial de alquiler.


Ubicado en una zona plenamente consolidada y bien comunicada, a pocos minutos de la estación de FGC Nacions Unides y con acceso rápido a las principales vías (C-58 y C-16).


Un espacio moderno, eficiente y versátil que combina ubicación, visibilidad y rentabilidad.

Índice de alquiler

Año de construcción 2025
Construidos 42 m2
Útiles 38 m2
Precio/m² 1.667
Estado Excelente
Salida de humos
Calificación Energética (A) VER
Luz
Agua
La dirección del inmueble es aproximada.

Inmuebles similares:

 
 54 m2  0  0
Local Comercial en venta en Terrassa y con 54 m2.
80.000 €


Solicita información

Si deseas más información sobre esta propiedad, por favor, rellena el formulario:

Contacto
Cabello Real Estate
Carrer Gaudí 8, Oficina 8
08221 – Terrassa

info@cabellore.com
Síguenos en: